One of the biggest challenges for a plumbing designer/engineer designing a high-rise building is the hot water heating and supply system. The size, location and type of water heating equipment must be carefully planned and thoroughly thought through to ensure the system provides the temperature and volume of hot water needed for the project’s hot water demand.
In addition, the designer/engineer must ensure that hot water is delivered to the fixture promptly, temperature requirements are being met, and Legionella mitigation measures are implemented.
It is equally important that the design complies with the local plumbing code, energy codes and standards. The combustion air, structural support, natural gas and electricity requirements must be thoroughly considered.
Another important item to consider is equipment weight. Domestic hot water (DHW) heat exchangers and hot water storage tanks must be closely coordinated with the structural engineer to account for the system’s weight in the building’s structural drawings.
Key Items for Consideration
Items to consider when designing a hot water heating system depend on a variety of factors. For example, if the designer/engineer determines a central water heating system is the best for the project, a mechanical room on the roof is the best place to locate the system.
This is because the pressure at the lower levels of a high-rise building can exceed the pressure rating of the water heater or its components. Most water heaters have a maximum pressure rating of 150 psi.
Providing a separate hot water booster pump to ensure adequate pressure is available for the upper levels of the building can be costly, in addition to the increased cost of maintaining additional pumps. A separate hot water temperature maintenance system would be required to maintain hot water in the hot water express main.
Below is a list of other important items the designer/engineer needs to consider:
Electric resistance heating or gas heating?
Storage-type water heating or instantaneous-type water heating?
Is ample space available to use heat pump water heaters and support zero-carbon and net-zero emissions?
Is there space for a hot water zone pressure-reducing valve station and temperature maintenance heater (central and zone heating systems)?
Can the existing building structure support hot water storage tanks and heat exchangers?
For existing systems, is natural gas available on site? Is the gas supply volume available for the water heating equipment in gas water heating systems?
Is enough power available for an electric resistance water heating system?
Is enough roof space available to use a solar thermal water heating glycol system and panels?
What are the building owner’s operating and equipment life-cycle costs?
What are the water quality and water treatment equipment requirements?
This is not a complete list of items that need to be considered. Since every project is different, building size, use, water temperature and local codes should be taken into account when selecting a water heating system.
DHW Sizing Standards and Guidelines
Consultants use multiple methods when determining water heating demand. The two methods we opt for at Henderson Engineers and Henderson Building Solutions can be found in the American Society of Heating, Refrigeration, and Air Conditioning Engineers (ASHRAE) Handbook.
The first of these methods is what I like to call the gph (gallons per hour) method: each fixture is assigned a gph per fixture for a specific building type. When the total gph is determined, we multiply it by the demand and storage factors, then select the water heater that will satisfy those values. Refer to the example calculation and Table 10 reference out of the ASHRAE Data Book (see Figure 1).

The second method we use is what I call the fixture unit method. Relative to how a designer sizes the domestic water service for a building’s potable water supply, this method uses specific fixture unit values for each fixture. The designer then sums the total fixture unit values and converts the total value to gallons per minute (gpm) by way of a modified Hunters Curve.
When the total peak gpm is determined, the designer selects a water heater by calculating the amount of BTUs required for the project. Refer to the example calculation and Table 16 reference from the ASHRAE Data Book (see Figures 2, 3, 4).



Centralized Domestic Water Heater System
Centralized domestic water heaters offer a single hot water source and equipment maintenance point. To size a central system, determine the total building’s hot water demand and select a water heating system to meet that demand.
In a high-rise building, centralized water heating systems are more commonly used; they take less equipment to supply the building’s hot water heating requirement. The developer can also control more of the direct, upfront costs and installation of the equipment versus multiple smaller point-of-use systems that need to be serviced regularly.
Close coordination with the architect is required to ensure space and service clearances are provided and that the structural engineer accounts for the structural housekeeping pads adequate to support the equipment. At Henderson, our high-rise multifamily, hospitality and mixed-use projects typically use central water heating systems to supply the building’s hot water needs (see Figures 5 and 6).
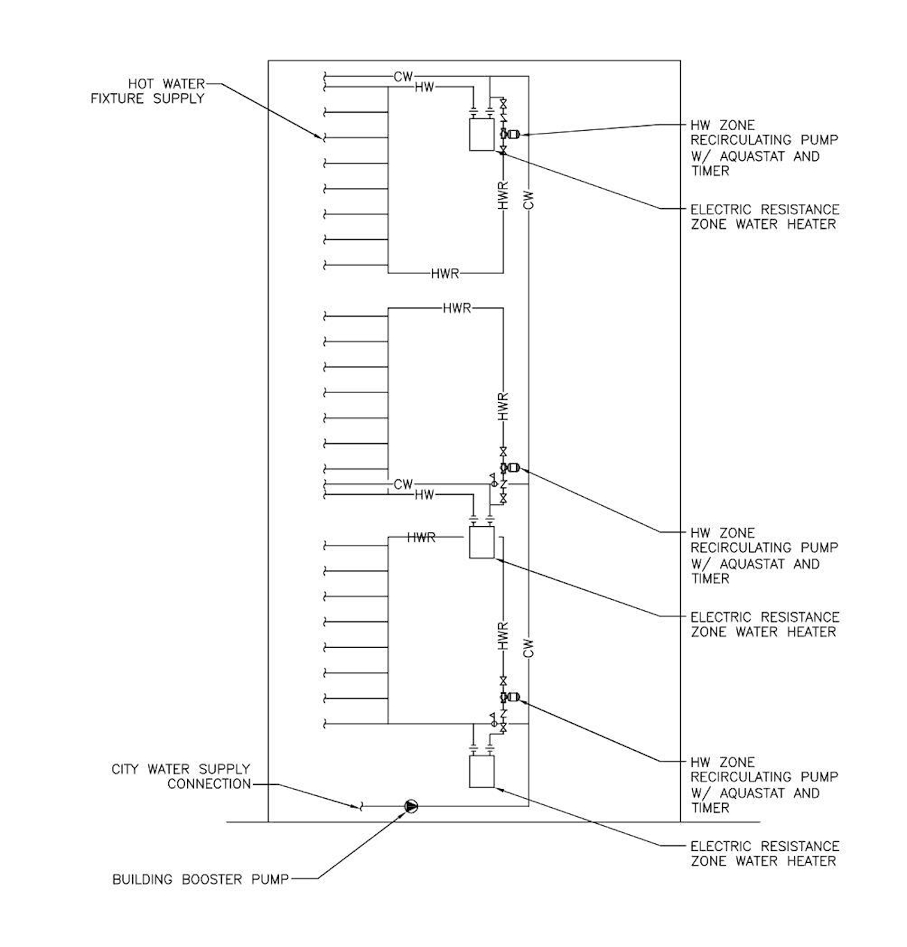
Zone Domestic Water Heating System
Zone domestic water heating systems include a single water heating system at each pressure zone in the building. These types of systems are commonly specified with electric resistance storage-type water heaters. The size of each heater is determined by the hot water demand within each pressure zone.
This system type is commonly used for office and workplace buildings where the hot water demand is minimal and mostly dedicated to serving restrooms and janitors’ sinks.
Gas-fired water heaters are not used for this type of system because it is challenging to provide combustion air and long runs of water heater exhaust flues in a high-rise building; they quickly become prohibitively costly (see Figures 7 and 8).


Point-Of-Use Water Heating Systems
Point-of-use water heating systems have their place in the high-rise building world as well. When designing a tenant improvement on a particular floor in an existing high-rise building, an instantaneous point-of-use electric heater can be a good choice.
This heater type is a cost-effective choice for a single breakroom sink or group of lavatories where there is no hot water system. The heater requires only a cold water pipe to its under-counter location for the sink or lavatory served. This heater type requires no dedicated equipment room or hot water return piping.
One important thing to note when using a point-of-use water heater for a breakroom sink application is the need to verify if a dishwasher will be installed. If so, make sure to size the heater to account for both the appliance and breakroom sink running simultaneously. (see Figure 9).

Water Heating Systems and Pressure- Reducing Valve Stations
Having adequate water pressure at the top of the building for the water heating equipment is equally as important as ensuring that the minimum water pressure is provided at the plumbing fixtures. Providing a pressure-reducing valve (PRV) at every fixture or floor within the building is cost prohibitive on a project.
A PRV zone station should, therefore, be used to serve multiple levels and be accessible for maintenance and service. It is our company’s policy to provide a PRV and a water heater to serve multiple levels and reduce the amount of PRV stations for projects.
Water Maintenance Heater Sizing
When designing a central water heating system, the hot water supply and return express main pressure will be too great to recirculate. Therefore, a pressure zone pump and reheat heater must be provided at each zone.
When designers try to recirculate a reduced pressure zone hot water return into an express hot water return main, the system becomes difficult to balance, so it is not recommended to recirculate back into the high-pressure hot water main. It is necessary to provide a reheat/temperature maintenance heater to make up for the heat loss in each of the pressure zones to ensure the temperature within the zone is maintained at a set point of 140 F.
Henderson sizes the hot water temperature zone heaters based on the allowable heat loss in the hot water supply and return systems. We typically design 140 F systems with a return temperature of no less than 132 F. This keeps the system temperature in the four- to six-hour “kill zone” for Legionella control. Once the hot water recirculating pump flow is determined, use a delta T of 8 degrees to size the maintenance heater from there.
So, if we have a recirculating pump that needs to move 10 gpm of water to overcome heat loss in the domestic hot water system, we would then use the following equation:
BTU/hour = gph x 8.34 x delta T
BTU/hour = 10 gpm X 60 minutes/hour X 8.34 pounds/gal X 8 degrees = 40,032 BTH X kW/3412 BTUH = 11.7 kW
Commercial water heaters are not designed to operate continuously at their maximum-rated output and will quickly fail if subjected to this type of load. Size the water heater so the recovery is at least 1.5 times the load, and the storage tank is at least double the recirculation pump flow rate. This sizing method allows the heating elements to shut off and remain off for a period of time.
Henderson recommends a heater with three-phase power, which includes three banks of heating elements and an automatic sequencer to rotate the heater element usage. This heater type is also available with 1 1/4-inch inlets and outlets but only with storage tanks greater than 52 gallons.
Light commercial heaters typically include 3/4-inch inlets and outlets; the velocity limit for copper tube of 5 feet/second for 140 F hot water is easily exceeded, making this heater type a poor selection. For this application, a 52-gallon heater with an automatic sequencer and three banks of 6 kW heating elements would be selected.
Best Practices
Designing domestic hot water systems for a high-rise building has its challenges, but several best practices can help ensure success:
Remember the fundamentals of hydraulics and the physics of gravity. Make sure to keep the pressure range in a single zone between the minimum pressure required for the plumbing fixture to operate and the code maximum of 80 psi.
Keep a close eye on the hot water supply and temperature maintenance routing.
Maintain water system temperature at 140 F or provide other approved Legionella mitigation strategies.
Central water heating systems need each pressure zone with an independent hot water temperature maintenance system separate from the high-pressure hot water main.
Keep PRV closets and maintenance reheat water heaters in the same room.
Karl Caouette, CPD, is a plumbing technical director at Henderson Engineers, a national building systems design firm.

_800x800_webp.webp?t=1775667064)



