Winterizing fire sprinkler systems is a critical service needed to reduce the chance of water damage issues associated with frozen piping. Winterization should always be performed prior to the onset of cold weather and may be performed by the customer (owner) or by qualified technicians or inspectors, depending upon the applicable state or local rules.
Fire protection service providers can provide winterization services as a standalone service call or as a part of an annual or quarterly inspection service agreement.
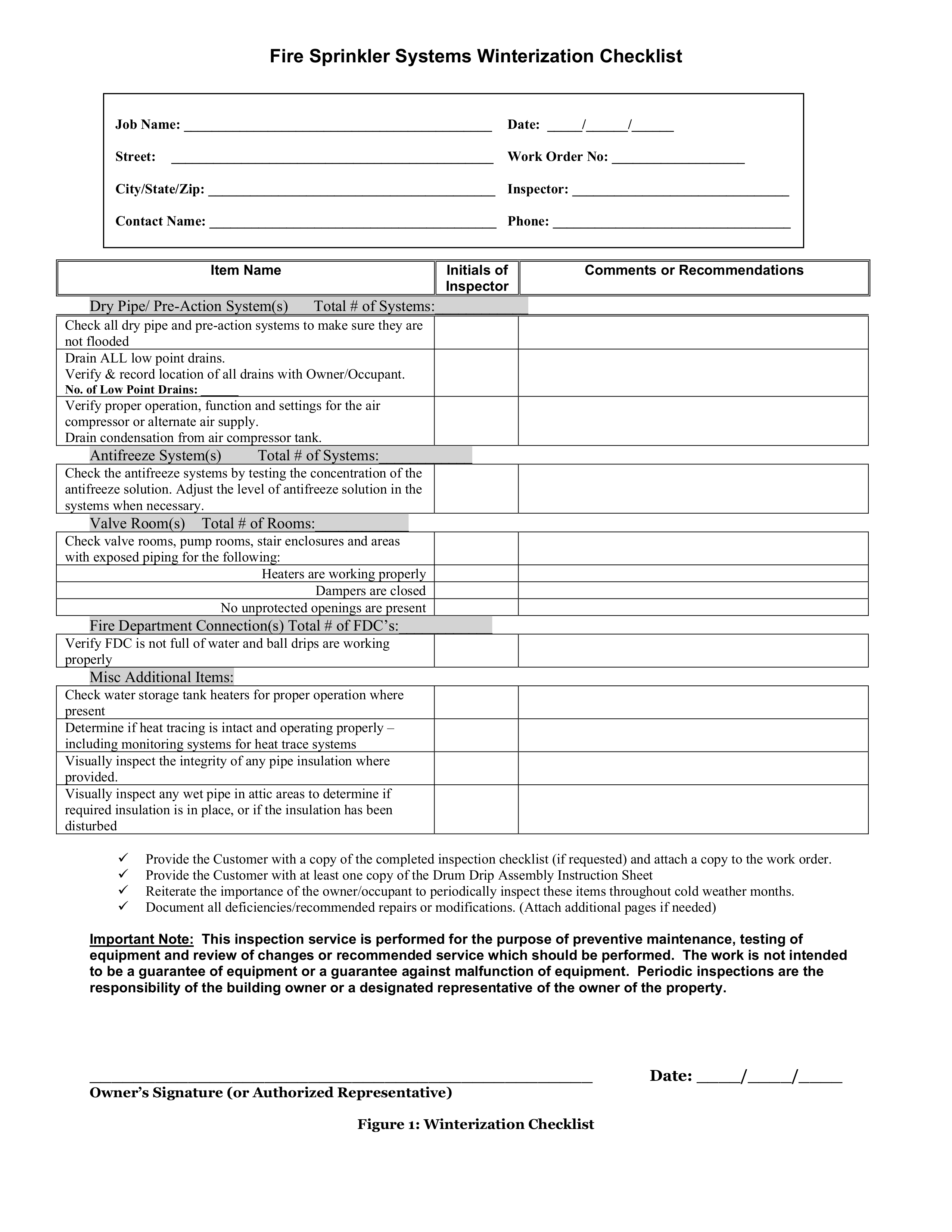
When performing this service, refer to the checklist for the items to be included (see Figure 1). This checklist is not considered proprietary or confidential information and may be shared with contractors and their customers who choose to self-perform some or all the services noted.

As with any inspection service provided, it is critical that the technician or inspector check each item on the list and make notes on any deficiencies or recommendations for corrective action, as well as note any corrective actions provided during the inspection.
Generally, service providers do not offer a guarantee or warranty with inspection services. The work is being performed for the purpose of preventive maintenance, testing of equipment and review of changes or recommended services that should be performed. This work is not intended to be a guarantee of equipment or a guarantee against equipment malfunction.
The service provider should retain a copy of the completed checklist (or similar inspection report) as a record of work performed, along with the corresponding work order. This inspection record and any resulting recommendations can be transmitted to the owner or occupant of the building/facility and the local authority holding jurisdiction, where required. Open communication will only improve the ability to maintain systems properly.
Chapter 4 of NFPA 25, Standard for the Inspection, Testing, and Maintenance of Water-Based Fire Protection Systems, establishes all responsibility for fire sprinkler system inspection, testing and maintenance as the system(s) owner’s responsibility. Service providers should limit liability by ensuring the customer understands everyone’s role in system maintenance and clearly communicate the customer’s obligation to check all items using the checklist throughout the cold months.
For example, maintaining minimum heat in spaces that have water-filled piping can be confirmed by a service provider during a winterization inspection. Still, the owner or occupant needs to make sure the heat continues to operate as expected throughout the cold weather season.
Service technicians and inspectors should instruct the owner/occupant on how to perform the minimum level of maintenance required for the building’s system, document such instruction on the winterization checklist and familiarize them with applicable NFPA 25 requirements. It is a team effort to keep systems operational over their lifespan.

Dry Systems and Drum Drip Assemblies
One example of an area where the owner/occupant should be involved is when a dry system is present. Commonly, drum drip assemblies will be used as auxiliary drains to remove collected condensate from low points in the system that do not return to the main drain. Depending on the temperatures and environment, this should be periodically checked to make sure water has not accumulated.
For a procedure for draining the assembly, see Exhibit 1. It is important for the owner/occupant to know how many of these are in the facility and to check them so any water can be removed in a timely manner to avoid damage to the system.
Inform the client of potential failures or causes of freezing problems. Note that air compressors and unit heaters must be inspected periodically to ensure continued operation after the winterization inspection. Also, condensation can and will continue to collect in low-point drains and may freeze if not emptied.
Following an annual procedure, simplified here, can aid in keeping a fire sprinkler system functioning as intended and ready should a fire incident occur.
Procedure for winterization inspection:
1. Inspect and check whether those components are visible from the floor level or are accessible.
2. Attest to the condition or operation of the items checked at the time of the inspection.
3. Provide the customer with a copy of the checklist or report along with any needed instructions, such as a Drum Drip Assembly Instruction Sheet.
Preparing for the colder season before it arrives and arming the owner with the details to keep the system in tip-top form will create the best fire protection scenario for a property.
Robert Caputo, CFPS, is the president of the American Fire Sprinkler Association (AFSA), chair of the NFPA 24 and NFPA 291 technical committees and a member of multiple National Fire Protection Association (NFPA) technical committees. He is a contributor to the NFPA 13 and NFPA 25 Handbooks, as well as the NFPA Inspection Manual. A senior member of NFPA and AFSA faculties, Caputo has written and presented seminars worldwide on fire protection and life safety systems and is a regular speaker at AFSA and NFPA conventions.

_800x800_webp.webp?t=1775667064)



